Porzione di bifamiliare in vendita

Cerveteri, Via del Bagolaro - Campo Di Mare
€ 110.000
2 locali 2 locali
50 Mq 50 Mq
1 bagno 1 bagno

Porzione di bifamiliare in vendita

Cerveteri, Via del Bagolaro - Campo Di Mare

Descrizione annuncio

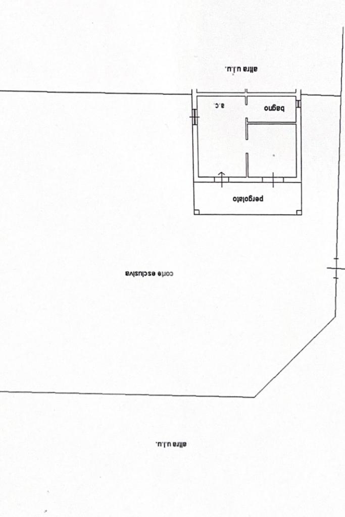
Villino bifamiliare di nuova costruzione allo stato grezzo con ampio giardino – Comprensorio a pochi passi dal mare

All’interno di un comprensorio riservato, a pochi passi dal mare, proponiamo in vendita villino bifamiliare di nuova costruzione (dal 2020), attualmente in fase di costruzione e venduto allo stato grezzo.

L’immobile è circondato da circa 300 mq di giardino privato, elemento di grande valore che consente di vivere a pieno gli spazi esterni e di personalizzare l’area secondo le proprie esigenze.

La soluzione rappresenta un’ottima opportunità per chi desidera realizzare una casa su misura, scegliendo finiture, materiali e distribuzione degli spazi interni, beneficiando di una struttura nuova e moderna, conforme alle normative edilizie recenti.

Internamente sono presenti salone con angolo cottura, camera da letto e bagno, esternamente ampio portico amplifica e collega la casa allo splendido spazio circostante.

La posizione è uno dei principali punti di forza: mare facilmente raggiungibile a piedi, contesto tranquillo e residenziale, ideale sia come abitazione principale sia come casa vacanze.

Soluzione ideale per chi cerca una nuova costruzione da personalizzare, in un contesto esclusivo e a ridosso del mare.

Possibilità di acquistare altra porzione e realizzare villino singolo vista mare.

Contattaci o passaci a trovare per ulteriori informazioni o per fissare un appuntamento.

Mostra tutto

Nelle vicinanze

Trasporto pubblico Trasporto pubblico
stazione di Marina di Cerveteri
stazione di Marina di Cerveteri
1,4 Km
Marina di Cerveteri
Marina di Cerveteri
1,9 Km
Scuola Fratelli Bandiera
Scuola Fratelli Bandiera
2,0 Km
Scuole Scuole
Istituto Comprensivo Statale Marina di Cerveteri
1,9 Km
Scuole
2,0 Km
Scuola d'Infanzia Marina di Cerveteri
2,0 Km
Via Fratelli Bandiera
2,0 Km
Liceo Pertini Succursale
2,0 Km
Farmacia Farmacia
Farmacia Comunale 2
1,6 Km
Farmacia Comunale
2,6 Km
Farmacia Firenze
2,9 Km
Supermercati Supermercati
Coop
1,9 Km
Carrefour Express
2,0 Km
EuroSpin
2,3 Km
Todis
2,6 Km
Negozi Negozi
Panificio Arte e Farina
1,8 Km
Body Chic
2,2 Km
Bar Bar
Da Ezio alla Torretta
310 m
Renzi
390 m
Ocean Surf Beach
500 m
Bar da Franco
690 m
Maitai
710 m
Ristoranti Ristoranti
Zelio Beach
260 m
Ristorante Agriturismo Torre Flavia
990 m
La Grande Muraglia zhǎng chéng
1,2 Km
La Vela
1,3 Km
Ristorante Oceano D'oro
1,9 Km
Mostra tutto

Caratteristiche

Rif.:
61164116
Piano:
1 di 1 (Piano terra)
Posti auto:
1
Camere da letto:
1
Arredamento:
Assente
Condizionamento:
Assente
Mostra tutto
Prezzo Prezzo
€ 110.000
Rata mutuo Rata mutuo
€ 521 / mese
Spese annue Spese annue
€ 0
Proponi il tuo prezzoProponi il tuo prezzo

Classe Energetica

Questo immobile è esente da classe energetica
Anno di costruzione:
2020
Riscaldamento:
Assente

Ti interessa visionare l'immobile?

Fissa un appuntamento  Fissa un appuntamento

Richiedi informazioni

Clicca su Leggi per aprire l'informativa
* Questi campi sono obbligatori

Calcola il tuo mutuo

Semplice e senza impegno
Anticipo

( % )
Mutuo

( % )

pochi semplici passi

inserisci i tuoi dati
Questionario completato
Grazie per aver richiesto un appuntamento senza impegno con un nostro Consulente del Credito e Assicurativo.

Hai inserito correttamente tutti i dati necessari e a breve riceverai una e-mail con un link da convalidare per inviare i tuoi dati.
Affiliato
Domina Srl
Viale Italo Chirieletti, 308/310 00052 Cerveteri (RM)

Il nostro staff


  • Gioia Cocozza
    Coordinatrice

  • Samuele Salvatore
    Collaboratore

  • Matteo Saraconi
    Responsabile

  • Angela Vignati
    Affiliata
Viale Italo Chirieletti, 308/310 00052 Cerveteri (RM)
Zona: Cerveteri
Mostra su mappa
Orari: Lunedì : 9:00 - 13:00 / 15:30 - 19:00 Martedì : 9:00 - 13:00 / 15:30 - 19:00 Mercoledì : 9:00 - 13:00 / 15:30 - 19:00 Giovedì : 9:00 - 13:00 / 15:30 - 19:00 Venerdì : 9:00 - 13:00 / 15:30 - 19:00 Sabato : 9:30 - 13:00 / 14:00 - 18:00
Affiliato
Domina Srl
Viale Italo Chirieletti, 308/310 00052 Cerveteri (RM)

2026 Tecnocasa Franchising S.p.A. - P. IVA 08365160152 - Via Monte Bianco 60/A 20089 Rozzano (MI). Ogni agenzia ha un proprio titolare ed è autonoma. Privacy policy | Policy utilizzo | Cookie policy