Porzione di bifamiliare in vendita

Cerveteri, Via di Zambra
€ 339.000
10 locali 10 locali
250 Mq 250 Mq
3 bagni 3 bagni

Porzione di bifamiliare in vendita

Cerveteri, Via di Zambra

Descrizione annuncio

Villa bifamiliare con terreno a pochi minuti da Cerveteri.

In posizione tranquilla ma non isolata, a breve distanza dal centro di Cerveteri, proponiamo in vendita una villa bifamiliare disposta su tre livelli e circondata da circa 3.000 mq di terreno, ideale per chi desidera godere di spazi ampi senza rinunciare alla comodità dei servizi.

Al piano principale troviamo un luminoso soggiorno con uscita sul terrazzo, una cucina abitabile e la zona notte composta da tre camere da letto, di cui una di dimensioni più generose. A completare il livello, due bagni entrambi con doccia.

Da due delle camere è possibile accedere al soppalco che conduce alla mansarda, attualmente adibita a sala lettura e studio, uno spazio intimo e riservato.

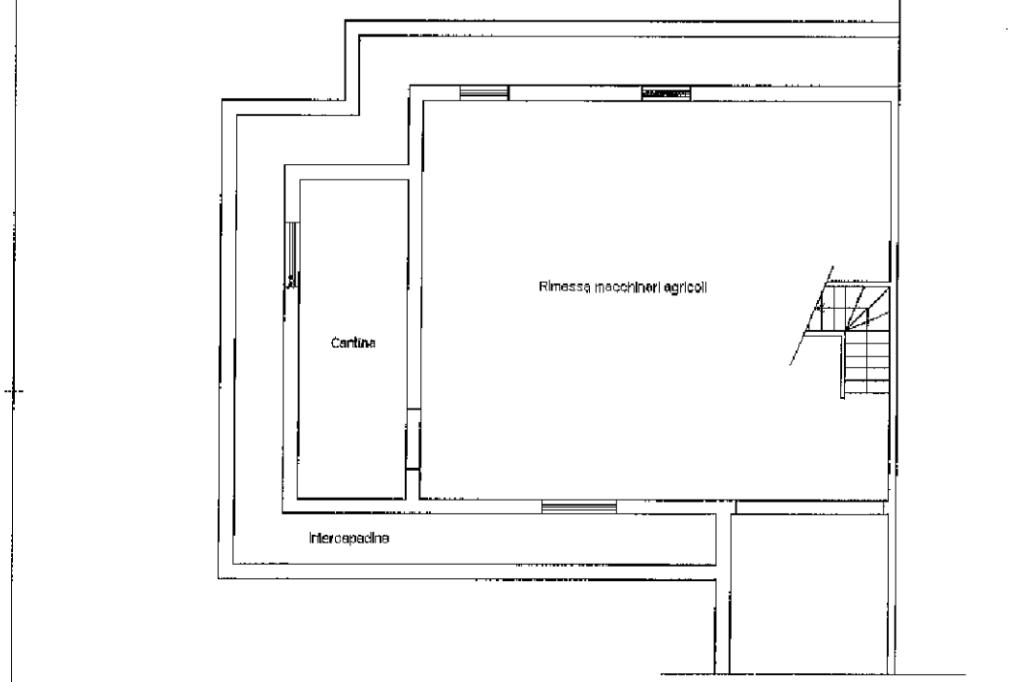
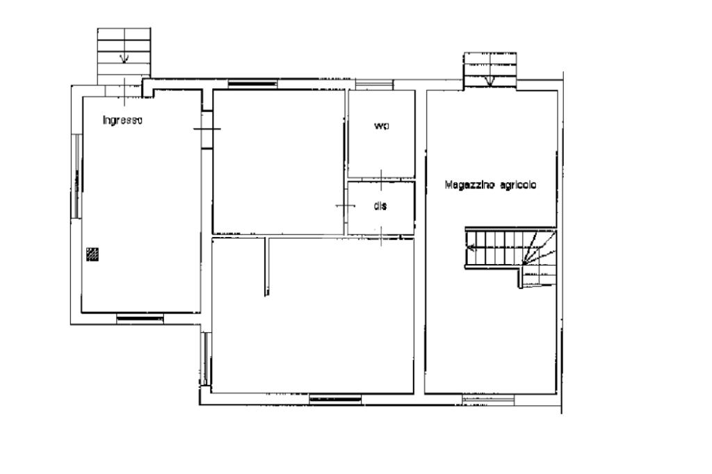
Scendendo al piano inferiore si apre la grande taverna, arricchita da un accogliente soggiorno con camino e da una cucina in muratura. Completano il piano due camere, un pratico ripostiglio e un bagno finestrato.

Una soluzione ideale per famiglie numerose o per chi ama vivere la casa sfruttando ogni ambiente, con ampi spazi interni ed esterni da personalizzare secondo le proprie esigenze.

Contattaci per maggiori informazioni o per fissare la tua visita!

Mostra tutto

Nelle vicinanze

Trasporto pubblico Trasporto pubblico
Cotral
Cotral
680 m
Trasporto pubblico
880 m
Scuole Scuole
Scuola Media Statale Salvo D'Acquisto
970 m
Istituto d'Istruzione Superiore Enrico Mattei
1,4 Km
Scuole
2,8 Km
Farmacia Farmacia
Farmacia Comunale 5
680 m
Farmacia Pratocavalieri
840 m
Farmacia Comunale 1
1,1 Km
Farmacia Comunale 3
1,5 Km
Supermercati Supermercati
Conad
880 m
Carrefour
950 m
Lidl
1,4 Km
Coop
1,4 Km
Pam
2,4 Km
Negozi Negozi
Container
820 m
Negozi
1,1 Km
Per Lui & Per Lei
1,1 Km
Pane e Dolci di Pescetto
1,1 Km
Bar Bar
Bar Manzoni
660 m
Bar
1,1 Km
Caffé del portico
1,2 Km
Ristoro
1,8 Km
Circolo sportivo Maremma Sud
2,6 Km
Ristoranti Ristoranti
Pizzeria La Contrada
770 m
Matuna
990 m
Quetzal Cafè
1,0 Km
Tutto Il Resto è pizza
1,1 Km
Cantina trattoria Tontini
1,1 Km
Mostra tutto

Caratteristiche

Rif.:
61116090
Piano:
3 di 3 (Piano su più livelli)
Posti auto:
2
Terrazzi:
1
Camere da letto:
5
Arredamento:
Assente
Mostra tutto
Prezzo Prezzo
€ 339.000
Rata mutuo Rata mutuo
€ 1.607 / mese
Spese annue Spese annue
€ 0
Proponi il tuo prezzoProponi il tuo prezzo

Classe Energetica

Questo immobile è esente da classe energetica
Anno di costruzione:
2002
Riscaldamento:
Autonomo
Tipo impianto:
A radiatori
Tipo alimentazione:
GPL

Ti interessa visionare l'immobile?

Fissa un appuntamento  Fissa un appuntamento

Richiedi informazioni

Clicca su Leggi per aprire l'informativa
* Questi campi sono obbligatori

Calcola il tuo mutuo

Semplice e senza impegno
Anticipo

( % )
Mutuo

( % )

pochi semplici passi

inserisci i tuoi dati
Questionario completato
Grazie per aver richiesto un appuntamento senza impegno con un nostro Consulente del Credito e Assicurativo.

Hai inserito correttamente tutti i dati necessari e a breve riceverai una e-mail con un link da convalidare per inviare i tuoi dati.
Affiliato
Domina Srl
Viale Italo Chirieletti, 308/310 00052 Cerveteri (RM)

Il nostro staff


  • Gioia Cocozza
    Coordinatrice

  • Samuele Salvatore
    Collaboratore

  • Matteo Saraconi
    Responsabile

  • Angela Vignati
    Affiliata
Viale Italo Chirieletti, 308/310 00052 Cerveteri (RM)
Zona: Cerveteri
Mostra su mappa
Orari: Lunedì : 9:00 - 13:00 / 15:30 - 19:00 Martedì : 9:00 - 13:00 / 15:30 - 19:00 Mercoledì : 9:00 - 13:00 / 15:30 - 19:00 Giovedì : 9:00 - 13:00 / 15:30 - 19:00 Venerdì : 9:00 - 13:00 / 15:30 - 19:00 Sabato : 9:30 - 13:00 / 14:00 - 18:00
Affiliato
Domina Srl
Viale Italo Chirieletti, 308/310 00052 Cerveteri (RM)

2026 Tecnocasa Franchising S.p.A. - P. IVA 08365160152 - Via Monte Bianco 60/A 20089 Rozzano (MI). Ogni agenzia ha un proprio titolare ed è autonoma. Privacy policy | Policy utilizzo | Cookie policy