Villa a schiera in vendita

Cerveteri, Via E. Lucci
€ 209.000
Prezzo aggiornato
5 locali 5 locali
150 Mq 150 Mq
2 bagni 2 bagni

Villa a schiera in vendita

Cerveteri, Via E. Lucci

Descrizione annuncio

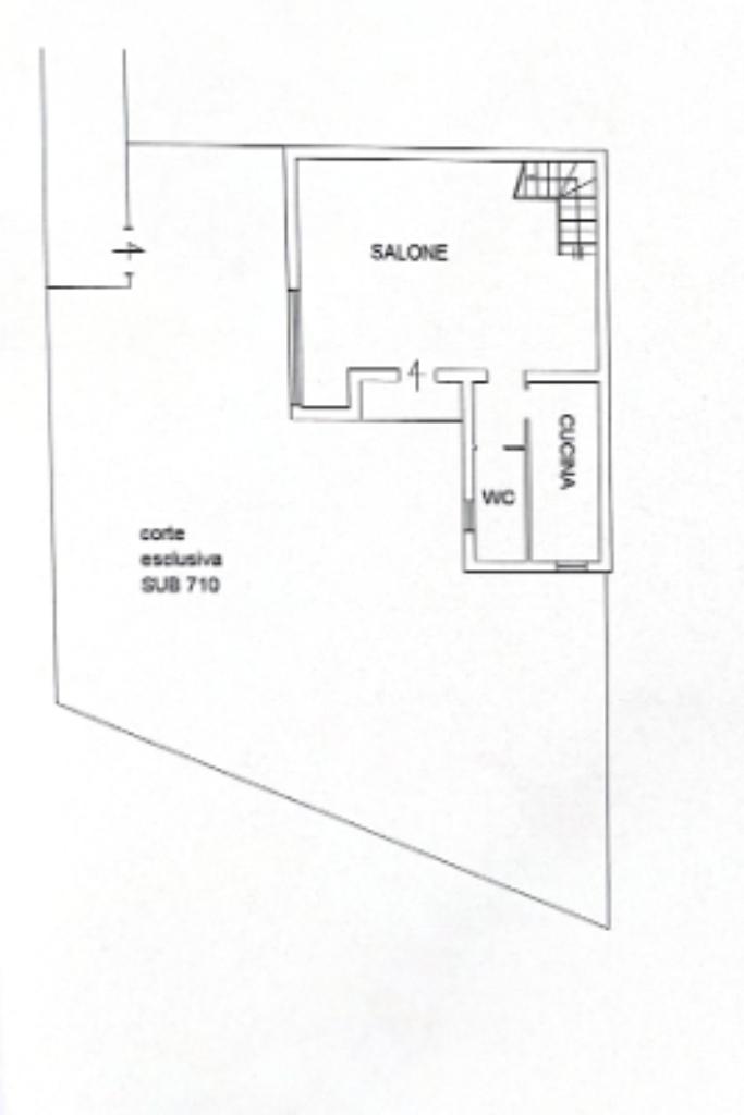
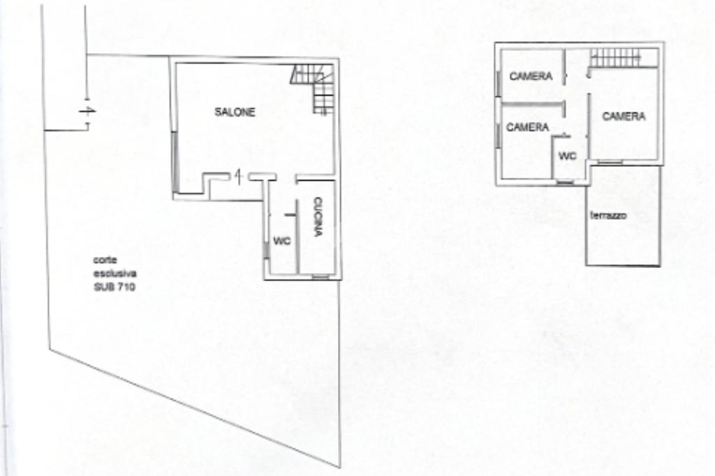
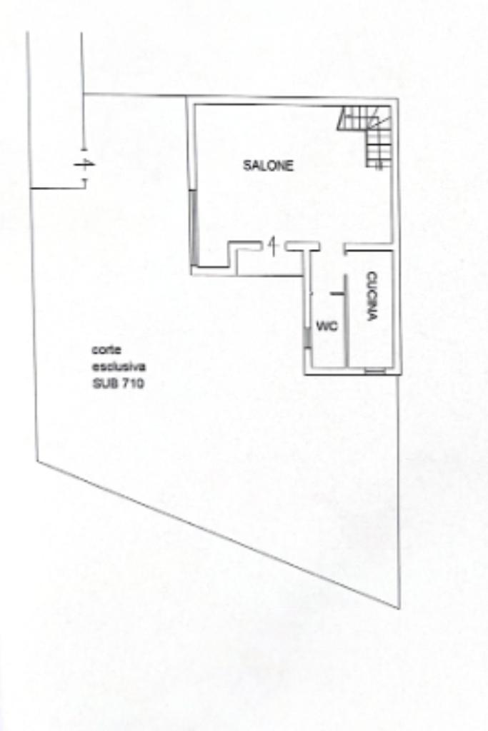
Nuda proprietà - Villa a schiera di 150mq con giardino angolare e posto auto

Proponiamo in vendita la nuda proprietà di una villa a schiera di 150 mq, disposta su due livelli e situata in posizione centrale ma al tempo stesso riservata e tranquilla.

Al piano terra si sviluppa la zona giorno, composta da un soggiorno ampio e funzionale con camino, cucina separata e bagno finestrato con doccia.
Il primo piano è dedicato alla zona notte, con due camere matrimoniali, una cameretta, un secondo bagno finestrato con doccia e un terrazzo con affaccio esterno.

La proprietà dispone di un giardino angolare su due livelli: il primo circonda la villetta, mentre il secondo, accessibile tramite scala, si affaccia verso l’esterno ed è dotato di cancello carrabile, con spazio per parcheggiare le auto e un orto già realizzato.

I veri punti di forza di questa soluzione sono lo sfogo esterno, ideale per vivere all’aperto, e la posizione strategica, che unisce la comodità dei servizi alla tranquillità di un contesto residenziale.

Una proposta interessante per chi desidera investire nella nuda proprietà, con la prospettiva di una casa indipendente e versatile.

Contattaci per maggiori informazioni e per fissare una visita.

Mostra tutto

Nelle vicinanze

Trasporto pubblico Trasporto pubblico
stazione di Marina di Cerveteri
stazione di Marina di Cerveteri
2,8 Km
Trasporto pubblico
530 m
Cotral
Cotral
610 m
Scuole Scuole
Scuola Media Statale Salvo D'Acquisto
580 m
Istituto d'Istruzione Superiore Enrico Mattei
1,2 Km
Scuole
1,7 Km
Istituto Comprensivo Statale Marina di Cerveteri
2,8 Km
Scuola d'Infanzia Marina di Cerveteri
2,9 Km
Farmacia Farmacia
Farmacia Comunale 5
980 m
Farmacia Pratocavalieri
1,1 Km
Farmacia Comunale 3
1,4 Km
Farmacia Comunale 1
2,0 Km
Farmacia Comunale 2
2,6 Km
Ospedali Ospedali
Posto di Primo Soccorso
2,0 Km
Supermercati Supermercati
Lidl
940 m
Carrefour
1,1 Km
Coop
1,2 Km
Pam
1,3 Km
Conad
1,4 Km
Negozi Negozi
Pane e Dolci di Pescetto
560 m
Negozi
630 m
Container
1,5 Km
Per Lui & Per Lei
2,0 Km
Panificio Arte e Farina
2,1 Km
Bar Bar
Caffé del portico
150 m
Bar Manzoni
1,2 Km
Circolo sportivo Maremma Sud
1,4 Km
Bar
1,4 Km
Bar Cesare
2,1 Km
Ristoranti Ristoranti
Trattoria Pizzeria Della Nonna
590 m
Pesceria Risto Pescheria
610 m
Tutto Il Resto è pizza
650 m
Pizzeria La Contrada
1,0 Km
Pizzeria Rosticceria Massy
1,3 Km
Mostra tutto

Caratteristiche

Rif.:
61109585
Piano:
1 di 2 (Piano su più livelli)
Posti auto:
2
Terrazzi:
1
Camere da letto:
3
Arredamento:
Assente
Mostra tutto
Prezzo Prezzo
€ 209.000
Rata mutuo Rata mutuo
€ 976 / mese
Spese annue Spese annue
€ 0
Proponi il tuo prezzoProponi il tuo prezzo

Classe Energetica

Questo immobile è esente da classe energetica
Anno di costruzione:
1980
Riscaldamento:
Autonomo
Tipo impianto:
A radiatori
Tipo alimentazione:
Metano

Prezzo ridotto di €1 (17%%)

Ti interessa visionare l'immobile?

Fissa un appuntamento  Fissa un appuntamento

Richiedi informazioni

Clicca su Leggi per aprire l'informativa
* Questi campi sono obbligatori

Calcola il tuo mutuo

Semplice e senza impegno
Anticipo

( % )
Mutuo

( % )

pochi semplici passi

inserisci i tuoi dati
Questionario completato
Grazie per aver richiesto un appuntamento senza impegno con un nostro Consulente del Credito e Assicurativo.

Hai inserito correttamente tutti i dati necessari e a breve riceverai una e-mail con un link da convalidare per inviare i tuoi dati.
Affiliato
Domina Srl
Viale Italo Chirieletti, 308/310 00052 Cerveteri (RM)

Il nostro staff


  • Gioia Cocozza
    Coordinatrice

  • Matteo Saraconi
    Responsabile

  • Angela Vignati
    Affiliata
Viale Italo Chirieletti, 308/310 00052 Cerveteri (RM)
Zona: Cerveteri
Mostra su mappa
Orari: Lunedì : 9:00 - 13:00 / 15:30 - 19:00 Martedì : 9:00 - 13:00 / 15:30 - 19:00 Mercoledì : 9:00 - 13:00 / 15:30 - 19:00 Giovedì : 9:00 - 13:00 / 15:30 - 19:00 Venerdì : 9:00 - 13:00 / 15:30 - 19:00 Sabato : 9:30 - 13:00 / 14:00 - 18:00
Affiliato
Domina Srl
Viale Italo Chirieletti, 308/310 00052 Cerveteri (RM)

2026 Tecnocasa Franchising S.p.A. - P. IVA 08365160152 - Via Monte Bianco 60/A 20089 Rozzano (MI). Ogni agenzia ha un proprio titolare ed è autonoma. Privacy policy | Policy utilizzo | Cookie policy