Trilocale in vendita

Cerveteri, Via Renato Morelli
€ 98.000
3 locali 3 locali
50 Mq 50 Mq
1 bagno 1 bagno

Trilocale in vendita

Cerveteri, Via Renato Morelli

Descrizione annuncio

Appartamento in zona centrale

Nel cuore di Cerveteri, a pochi passi dai principali servizi, proponiamo in vendita un appartamento al secondo ed ultimo piano di una piccola palazzina.

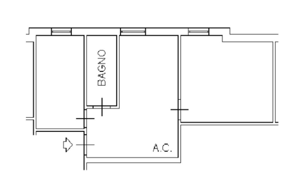
La soluzione è composta da soggiorno con angolo cottura, camera matrimoniale, una cameretta che all’occorrenza può essere utilizzata anche come studio e bagno con doccia.

La palazzina di piccole dimensioni garantisce costi di gestione contenuti, senza spese condominiali da sostenere.

Un appartamento pratico e ben posizionato, perfetto come prima abitazione o come investimento da mettere a reddito.

Una scelta comoda e vantaggiosa per chi desidera vivere la centralità del paese.

Contattaci per maggiori informazioni o per fissare la tua visita!

Mostra tutto

Nelle vicinanze

Trasporto pubblico Trasporto pubblico
Trasporto pubblico
100 m
Cotral
Cotral
160 m
Scuole Scuole
Scuola Media Statale Salvo D'Acquisto
180 m
Istituto d'Istruzione Superiore Enrico Mattei
740 m
Scuole
2,4 Km
Farmacia Farmacia
Farmacia Comunale 5
310 m
Farmacia Pratocavalieri
400 m
Farmacia Comunale 3
870 m
Farmacia Comunale 1
1,4 Km
Ospedali Ospedali
Posto di Primo Soccorso
2,4 Km
Supermercati Supermercati
Carrefour
400 m
Lidl
600 m
Conad
680 m
Coop
720 m
Pam
1,7 Km
Negozi Negozi
Negozi
270 m
Pane e Dolci di Pescetto
300 m
Container
870 m
Per Lui & Per Lei
1,3 Km
Panificio Arte e Farina
2,7 Km
Bar Bar
Bar Manzoni
510 m
Caffé del portico
770 m
Bar
1,3 Km
Circolo sportivo Maremma Sud
1,9 Km
Ristoro
2,4 Km
Ristoranti Ristoranti
Tutto Il Resto è pizza
290 m
Pesceria Risto Pescheria
350 m
Pizzeria La Contrada
360 m
Trattoria Pizzeria Della Nonna
730 m
Pizzeria Rosticceria Massy
840 m
Mostra tutto

Caratteristiche

Rif.:
61116076
Piano:
2 di 2
Camere da letto:
2
Arredamento:
Assente
Condizionamento:
Autonomo
Ascensore:
No
Mostra tutto
Prezzo Prezzo
€ 98.000
Rata mutuo Rata mutuo
€ 449 / mese
Spese annue Spese annue
€ 0
Proponi il tuo prezzoProponi il tuo prezzo

Classe Energetica

Questo immobile è esente da classe energetica
Anno di costruzione:
1980
Riscaldamento:
Autonomo
Tipo impianto:
Ad aria
Tipo alimentazione:
Aria

Ti interessa visionare l'immobile?

Fissa un appuntamento  Fissa un appuntamento

Richiedi informazioni

* Questi campi sono obbligatori

Calcola il tuo mutuo

Semplice e senza impegno
Anticipo

( % )
Mutuo

( % )

pochi semplici passi

inserisci i tuoi dati
Questionario completato
Grazie per aver richiesto un appuntamento senza impegno con un nostro Consulente del Credito e Assicurativo.

Hai inserito correttamente tutti i dati necessari e a breve riceverai una e-mail con un link da convalidare per inviare i tuoi dati.
Affiliato
Domina Srl
Viale Italo Chirieletti, 308/310 00052 Cerveteri (RM)

Il nostro staff


  • Gioia Cocozza
    Coordinatrice

  • Bianca Manole
    Coordinatrice

  • Matteo Saraconi
    Responsabile

  • Angela Vignati
    Affiliata
Viale Italo Chirieletti, 308/310 00052 Cerveteri (RM)
Zona: Cerveteri
Mostra su mappa
Orari: Lunedì : 9:00 - 13:00 / 15:30 - 19:00 Martedì : 9:00 - 13:00 / 15:30 - 19:00 Mercoledì : 9:00 - 13:00 / 15:30 - 19:00 Giovedì : 9:00 - 13:00 / 15:30 - 19:00 Venerdì : 9:00 - 13:00 / 15:30 - 19:00 Sabato : 9:30 - 13:00 / 14:00 - 18:00
Affiliato
Domina Srl
Viale Italo Chirieletti, 308/310 00052 Cerveteri (RM)

2025 Tecnocasa Franchising S.p.A. - P. IVA 08365160152 - Via Monte Bianco 60/A 20089 Rozzano (MI). Ogni agenzia ha un proprio titolare ed è autonoma. Privacy policy | Policy utilizzo | Cookie policy